Area business & Team building

//
Area business e team building

Lavoro ed energia

Business & Meeting

Da oltre vent’anni accompagniamo aziende e professionisti nella realizzazione di meeting, corsi di formazione, team building e ritiri aziendali in un contesto che unisce funzionalità, benessere e natura.
Ogni dettaglio è pensato per stimolare la creatività e favorire la collaborazione: dalle sale meeting attrezzate, alla ristorazione di qualità, fino alle esperienze outdoor e al relax dell’Alpen SPA.

VERSATILI E LUMINOSE

Sale meeting

I nostri spazi si adattano con facilità a ogni esigenza, dal piccolo workshop fino a eventi aziendali su larga scala.
Le sale, arredate con materiali naturali e dotate delle migliori tecnologie, sono ambienti dove il lavoro diventa più fluido, migliorando il benessere di ognuno.
Scopri le sale a disposizione o contattaci per organizzare insieme il tuo business event.

Primo piano | Hotel Milano

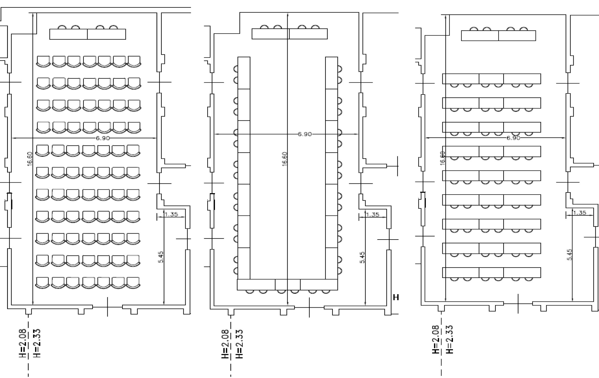
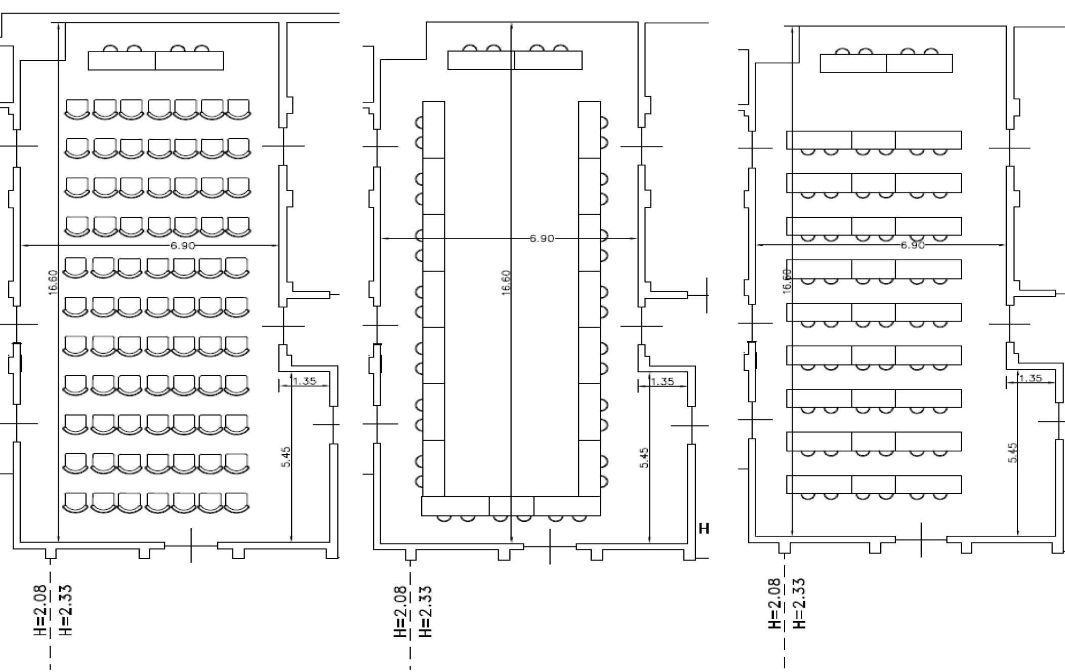
Sala dei pini

Dimesioni
Dimesioni

210 mq

20 mt

10,5 mt

Capacità di allestimento
Capacità di allestimento

180 pax

140 pax

90 pax

Piano terra | Active hotel

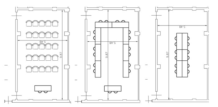
Sala Azalea

Dimesioni
Dimesioni

140 mq

14 mt

10 mt

Capacità di allestimento
Capacità di allestimento

80 pax

40 pax

30 pax

Terzo piano | Active hotel

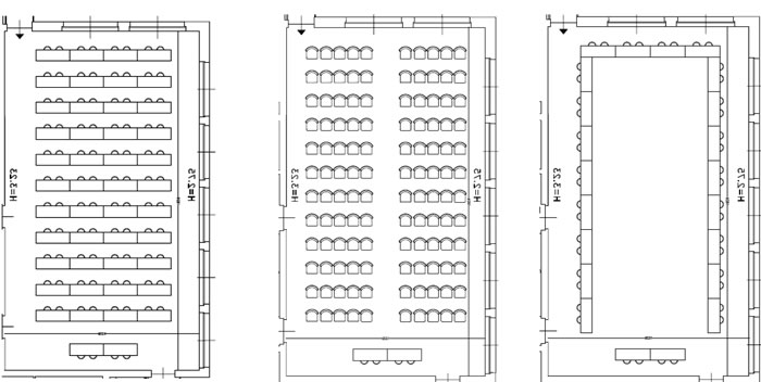
Sala Bucaneve

Dimesioni
Dimesioni

79 mq

8,75 mt

9 mt

Capacità di allestimento
Capacità di allestimento

30 pax

24 pax

18 pax

Semi interrato | Active Hotel

Sala Gardenia

Dimesioni
Dimesioni

74 mq

10,7 mt

6,9 mt

Capacità di allestimento
Capacità di allestimento

50 pax

40 pax

25 pax

Semi interrato | Active Hotel

Sala Genziana + Gardenia

Dimesioni
Dimesioni

110 mq

15,94 mt

6,9 mt

Capacità di allestimento
Capacità di allestimento

70 pax

90 pax

40 pax

Semi interrato | Active Hotel

Sala Ortensia

Dimesioni
Dimesioni

58 mq

10 mt

5,8 mt

Capacità di allestimento
Capacità di allestimento

35 pax

25 pax

16 pax

ESPERIENZE SU MISURA

Outdoor o indoor

All’Hotel Milano, il team building è un’opportunità per ritrovare equilibrio, energia e coesione.
Lo facciamo all’aperto, nel cuore della natura, seguendo il ritmo delle stagioni, con attività pensate per rafforzare lo spirito di squadra, stimolare la creatività e migliorare la comunicazione.

I nostri luoghi sono lo scenario perfetto per vivere esperienze condivise:

Ciaspolata

Gara di bob

Discesa nella Valle dei Mulini

Canyoning

Parco avventura

Paint ball park

Laser x park

Campo outdoor

Orienteering e caccia al tesoro

Arrampicata in palestra

eBike tour con Presolana Ski e-Bike

Tour privati sul lago di Iseo

Tour e degustazioni in Franciacorta

Forest bathing experiences

Motoslitte

E per chi preferisce rimanere in struttura, ecco alcune proposte:

Cooking show

Cene e degustazioni nella nostra cantina

Gara di cocktail

Alpen SPA candle night

Unire, coinvolgere, ispirare: questo è il nostro modo di fare team building.

Hotel Milano  //  Via Silvio Pellico, 3 – 24020 Castione della Presolana (Bergamo)
t. +39 0346 36236  //  m. +39 348 6626501  //  info@hotelmilano.com
CIN: IT016064A1VJVINEZJ  //  P.IVA 03852400161
© GestHotel S.r.l.  //  web by A2Lab

Hotel Milano
Via Silvio Pellico, 3
24020 Castione della Presolana (Bergamo)
t. +39 0346 36236
m. +39 348 6626501
info@hotelmilano.com
CIN: IT016064A1VJVINEZJ
P.IVA 03852400161
© GestHotel S.r.l.
web by A2Lab

Privacy Policy  |  Cookie Policy  |  Mappa del sito